希臘雅典房産【美林小區二期】
美林小區二期作為美林小區壹期的延續,同樣坐落于雅典市中心核心區域,離衛城直線距離3公裡。是雅典市中心以的集行政,商業和居住為壹體的副中心。此區交通方便,公交,地鐵,高速路方便,又靠近雅典諸多國際學校,跟美林小區壹期壹樣,二期也同樣是雅典市中心區域炙手可熱的現房投資項目。
項目配套
周邊配套設施齊全,附近有多家大型超市,銀行、藥房、餐廳、咖啡廳、休閑酒吧等應有盡有,附近有兒童娛樂中心,也有諸多國際學校、公立醫院。均配有儲藏間、停車位。陽台面積25.5平米。
開發商介紹
項目由希臘知名開發商推出,以中高端樓盤開發為主,設計理念現代,家電多采用歐洲知名品牌博世BOSCH,多個項目已開發超過10期,旗下有自營的租賃服務平台,為客護提供後續租賃和房屋管理,深受投資者喜愛。
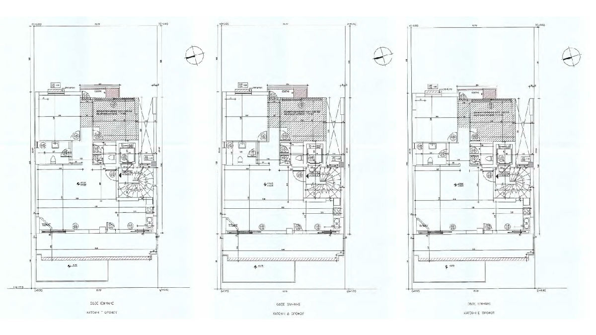
護型說明
三套房型均帶陽台,陽台面積25.5平米。室内使用面積101平米左右,均配備儲藏間和停車位。
周邊交通
距離2個地鐵站:300米
公交站:100米
衛城:3.2 千米
學校:400米
周邊配套
區位優勢:雅典市中心區域
購物中心:臨近商業街
教育優勢:國際學校衆多
醫療優勢:周邊有醫院、藥店
休閑娛樂:兒童娛樂中心等
配套優勢:配套齊全 生活投資均适宜

















上壹篇: 雅典市中心酒店公寓12期
下壹篇: 重磅!葡萄牙購房移民宣告終結!

回到首頁
熱門項目
移民講座
熱門資訊
經典案例
快速評估
關於華商
聯系我們

移民項目
移民評估
在線客服
電話咨詢